ưꖹ ˵{(dio)

Ʒb

Ŀ2765ƽ׵С⣬߀77.75184.16ƽ׵ĸ(jng)ܝMͶYsohoØI(y)N

9-Aes36.72ƽףһһdһNһl(wi)+_ͷ޶߿gʹ͏d͏d㕽gD(zhun)Q

13-A1es36.87ƽһһdһl(wi)+_mo挒4.5M(jn)7.2ף1.4*2.1׵_gȻL(fng)

10-Ces81.6O҃ɏdһNһl(wi)^_ͷ͏d͏dBͨ3.95挒M(jn)7.05ӳ^_mPD(zhun)ǴhO(sh)ӋҕҰ_

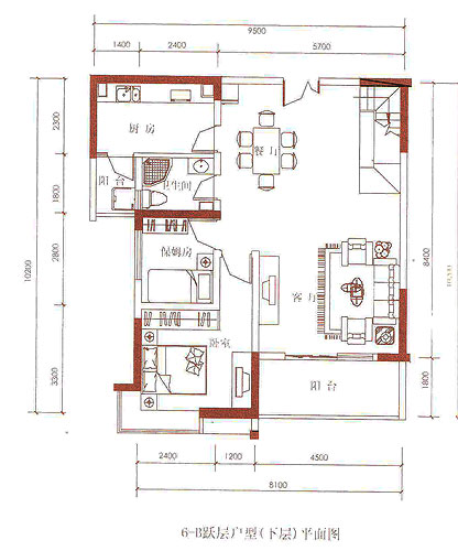
S6-Be184.16ƽסһO(sh)г^_͏dc͏dF(xin)˟opӣl(wi)gcԡxܷօ^(q)_oɝ^(q)ƌW(xu)x

վD(zhun)dº͈DƬڂϢ֮Ŀа(qun)hՈ3ƒ(ni)cվ“(lin)ϵhf(xi)̎"ϷW(wng)"δ(jng)վڙ(qun)D(zhun)dڙ(qun)news@ynhouse.com

P(gun)YӍ

ϲg

cӑՓ

ע

TuՓ